+375 (29) 995-61-64 (Velcom)
+375 (25) 956-81-80 (life)
+375 (29) 810 96 69 (МТС)
Дома до 25 000 USD
Открыть меню
- нескучный дом
О Нас
Проекты
Наши работы
Ремонт
Заборы
Бани
Участки
Контакты
Стаффорд (ПКД-90/18)
На главную
Проекты
Стаффорд (ПКД-90/18)
Общая площадь
198,3 м
2
Жилая площадь
152,9 м
2
Этажность
2
Площадь застройки
127,5 м
2
Объем
578 м
3
Высота в коньке
6,8 м
Площадь крыши
207,3 м
2
Количество комнат
6
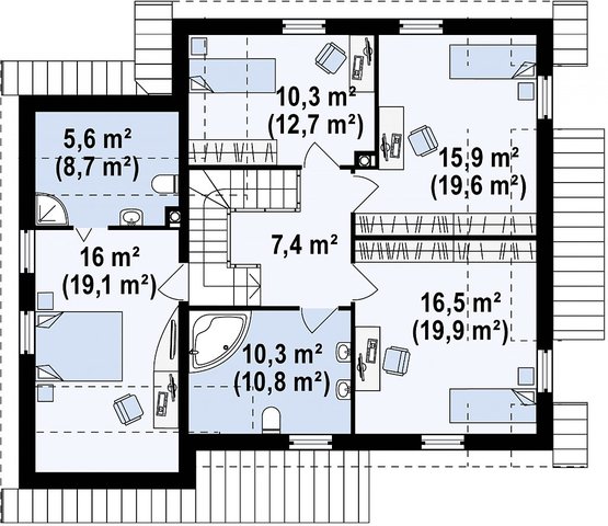
План 1-этажа
План 2-этажа
Фасады