+375 (29) 995-61-64 (Velcom)
+375 (25) 956-81-80 (life)
+375 (29) 810 96 69 (МТС)
Дома до 25 000 USD
Открыть меню
- нескучный дом
О Нас
Проекты
Наши работы
Ремонт
Заборы
Бани
Участки
Контакты
Марли (ПКД-76/18)
На главную
Проекты
Марли (ПКД-76/18)
Общая площадь
178,6 м
2
Жилая площадь
118,8 м
2
Этажность
2
Площадь застройки
112,3 м
2
Объем
436 м
3
Высота в коньке
6,4 м
Площадь крыши
182,1 м
2
Количество комнат
4
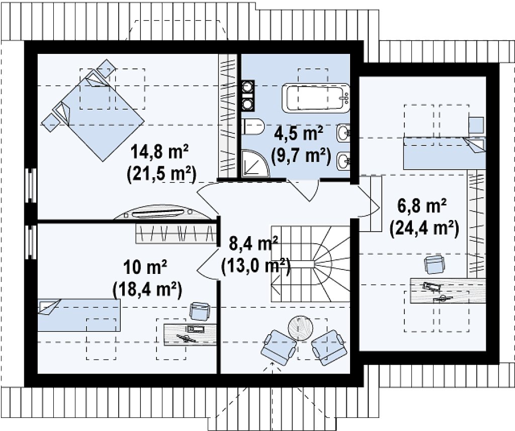
План 1-этажа
План 2-этажа
Фасады