+375 (29) 995-61-64 (Velcom)
+375 (25) 956-81-80 (life)
+375 (29) 810 96 69 (МТС)
Дома до 25 000 USD
Открыть меню
- нескучный дом
О Нас
Проекты
Наши работы
Ремонт
Заборы
Бани
Участки
Контакты
Аналог дня (ПКД-60/17)
На главную
Проекты
Аналог дня (ПКД-60/17)
Общая площадь
247 м
2
Жилая площадь
186,9 м
2
Этажность
2
Площадь застройки
170,0 м
2
Объем
330 м
3
Высота в коньке
6,7 м
Площадь крыши
214,4 м
2
Количество комнат
5
План 1-этажа
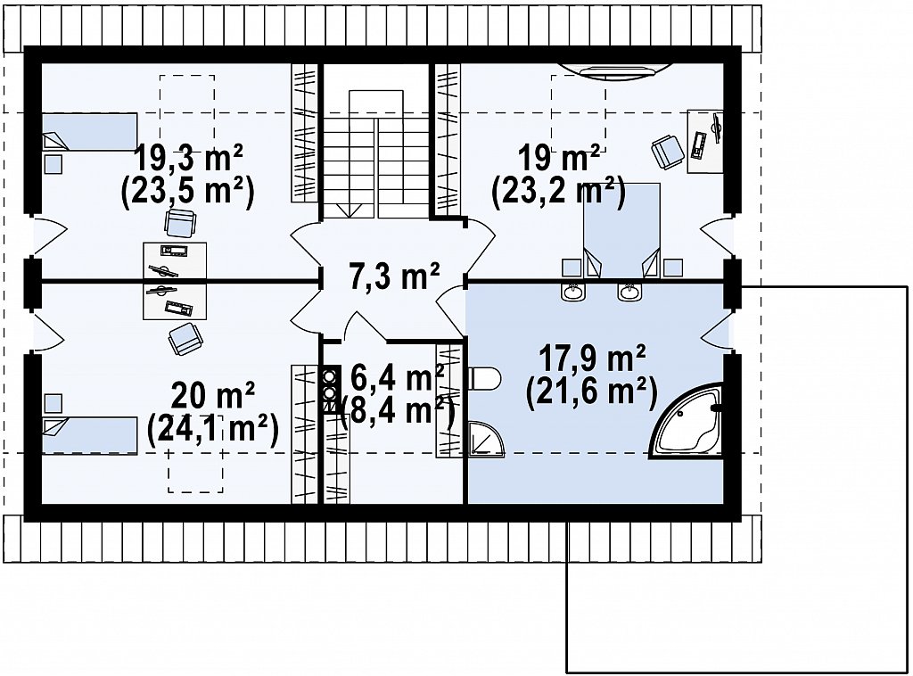
План 2-этажа
Фасады