+375 (29) 995-61-64 (Velcom)
+375 (25) 956-81-80 (life)
+375 (29) 810 96 69 (МТС)
Дома до 25 000 USD
Открыть меню
- нескучный дом
О Нас
Проекты
Наши работы
Ремонт
Заборы
Бани
Участки
Контакты
Гендельф (ПКД-108/18)
На главную
Проекты
Гендельф (ПКД-108/18)
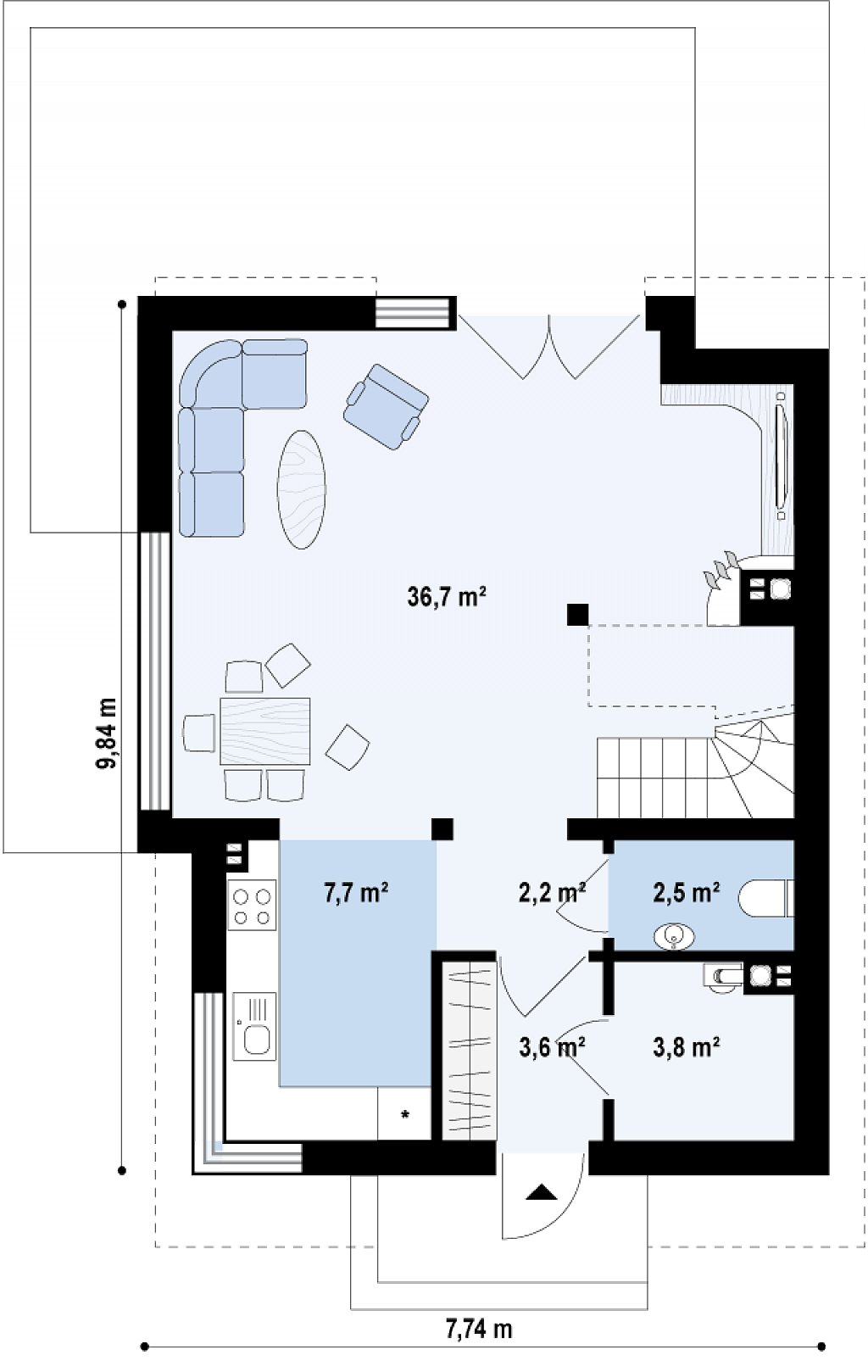
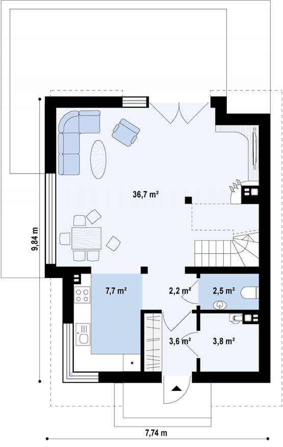
Общая площадь
96,1 м
2
Жилая площадь
102,7 м
2
Этажность
2
Площадь застройки
73,1 м
2
Объем
260 м
3
Высота в коньке
6,9 м
Площадь крыши
95,3 м
2
Количество комнат
4
План 1-этажа
План 2-этажа
Фасады